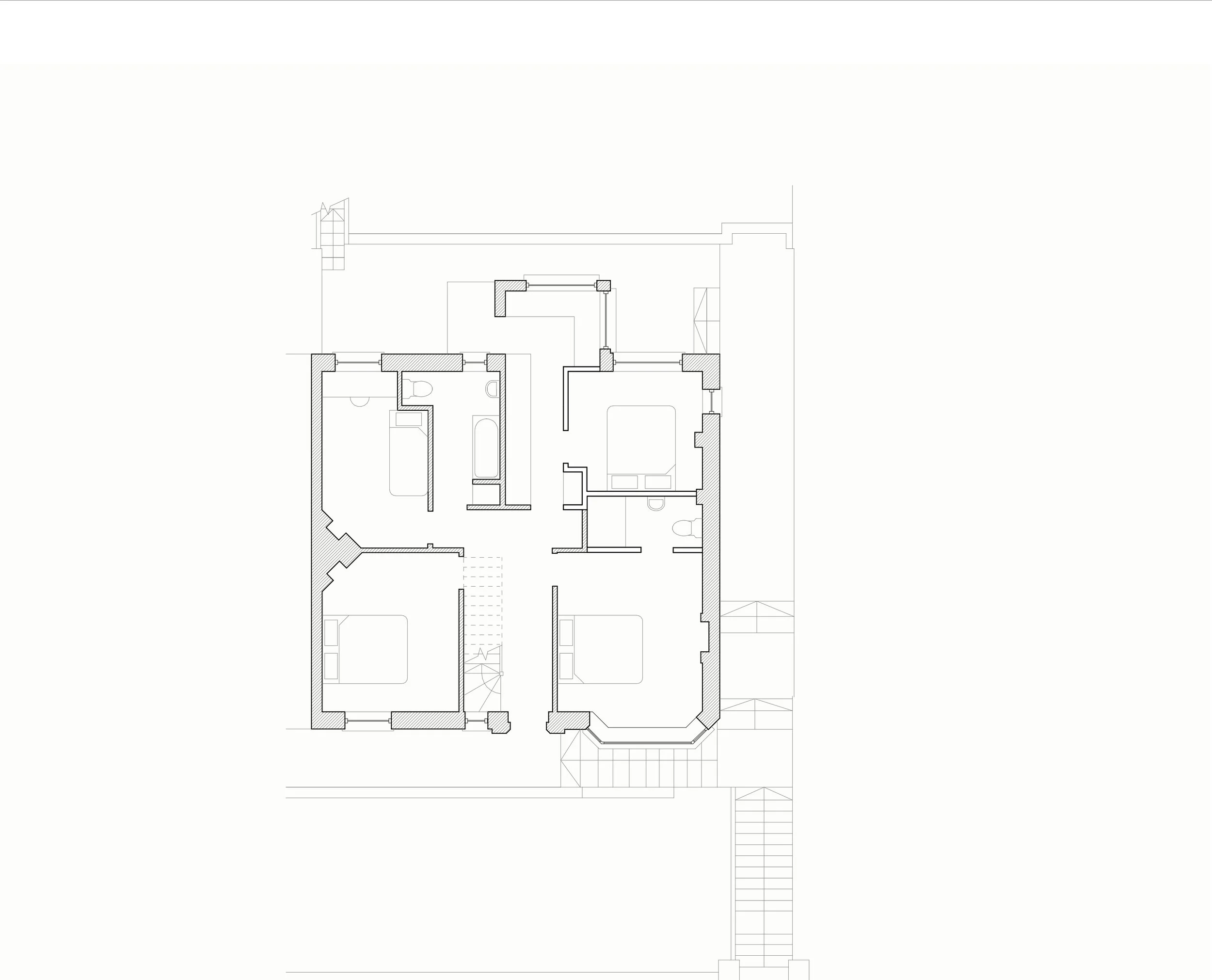
Ground Floor Plan

This existing 1930’s semi-detached dormer bungalow is nestled in a steep site overlooking Belfast. To maximise the potential of the house, the living accommodation, traditionally located off the main entrance hall at ground floor level, was flipped Upside Down to maximise the views across Belfast and also create a stronger connection to the rear garden. Minimal intervention to the ground floor layout was required to add a fourth bedroom and an en-suite bathroom.

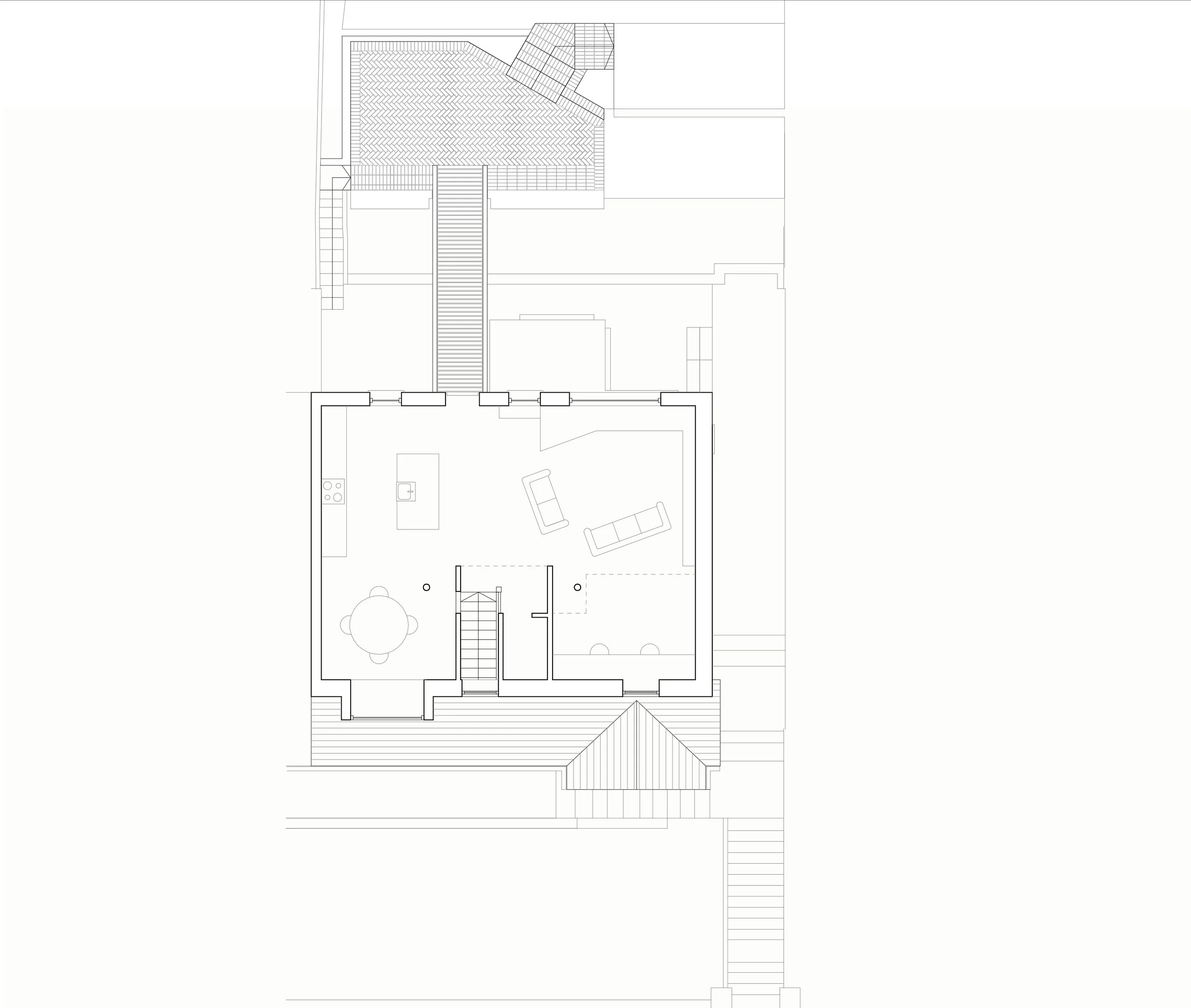
An open plan living and dining replaces two bedrooms and bathroom at the First Floor level with a new steel and timber bridge connecting to the south facing garden. Reclaimed herringbone brick paved patio with in-situ cast concrete walls forms the main external seating area to the terraced garden.

A new larger dormer roof extension to the rear of the house was added with exposed timber rafters and steel structure to create the open plan living space.

A fabric first approach was employed to upgrading the thermal envelope of the house to perform higher than requirements of building regulations. Cedar timber shingles with alu-clad timber windows form part of the new cladding at First Floor for the replacement of the old dormer extension. Internal insulation to walls and floors at ground upgrade

Cedar Shingles Timber Cladding Corner

The cedar timber shingles provide a warmth and texture that will slowly mature over time to a soft grey patina as they are exposed the seasons.

Shadows cast over the hardwood timber along the length of the bridge from First Floor to the reclaimed brick patio. Like the cedar timber shingles, the hardwood timber will age over time to a grey patina colour.

New bespoke handmade painted steel handrails were added along the external steps to the house. Careful attention to the detail and fabrication of the steel was made to ensure

Previous
Previous

#Belfast Magnets